|
|
|
²úÆ·Ãû³Æ£º
|
ÉñÊÓSF4-AHϵÁÐСÐ͹âÄ»´«¸ÐÆ÷
|
|
ÐÍ ºÅ£º
|
SF4-AHϵÁÐ
|
|
¼Û ¸ñ£º
|
0.00
|
|
Æ· ÅÆ£º
|
ÉñÊÓ
|
|
|
|
СÐ͹âÄ»´«¸ÐÆ÷
SF4-AHϵÁÐ
ÌØµã£ºType4¹âÄ»´«¸ÐÆ÷£¡
²úÆ·ÌØµã£º
·ûºÏ¹ú¼Ê°²È«±ê×¼SF4-AHϵÁÐÒѾ´ïµ½ÁË×îÑϸñµÄ¹ú¼Ê°²È«Ë®Æ½£¬·ûºÏ»úеָÁîºÍOSHA/ANSI±ê×¼¡£¸ÃϵÁÐÒѱ»Ðí¿ÉÔÚÊÀ½çµÄÈκι¤×÷³¡ËùʹÓá£
ÒÑ´ïµ½×î¸ßµÄ°²È«±ê×¼ËüÔËÓÃÁ½¸ö¶ÀÁ¢µÄCPU£¬»¥Ïà¼ì²â°²È«×´¿ö¡£×°±¸ÐÅÏ¢´¦ÀíºÍÊä³öµÄË«µç·£¬Ê¹¸ß¿É¿¿ÐԵݲȫÉè¼ÆµÃÒÔʵÏÖ¡£ ´ËÍ⣬ΪÁËÈ·±£°²È«£¬²ÉÓÃÓÚFMEAÒÔʵÏÖ°²È«¹¤×÷¡£ ¡ù FMEA£ºFailure Mode & Effects Analysis(¹ÊÕÏģʽºÍÓ°Ïì·ÖÎö)
°²È«¾àÀëµÄ¼ÆËãÒªÇó¼ò»¯ÒòΪÒÑ´ïµ½ÁËÒ»¸öÓë¹âÖáÊýÎ޹صÄ11msµÄ¸ßËÙ·´Ó¦£¬ËùÒÔ²»ÔÙÐèÒª¼ÆËãÿ¸ö¶ÀÁ¢´«¸ÐÆ÷µÄ°²È«¾àÀë¡£Õâ¸ö¸ßËÙ·´Ó¦¼ò»¯ÁËÕû¸ö°²È«¾àÀë¼ÆËãµÄ³ÌÐò¡£Ìá¸ßÁ˰²È«¾àÀë·´Ó¦ËÙ¶È£¬Ê¹µÃΣÏÕÇøÓòÓë´«¸ÐÆ÷Ö®¼äµÄ¾àÀëËõ¶Ì£¬´Ó¶øÊµÏÖÉ豸µÄСÐÍ»¯¡£
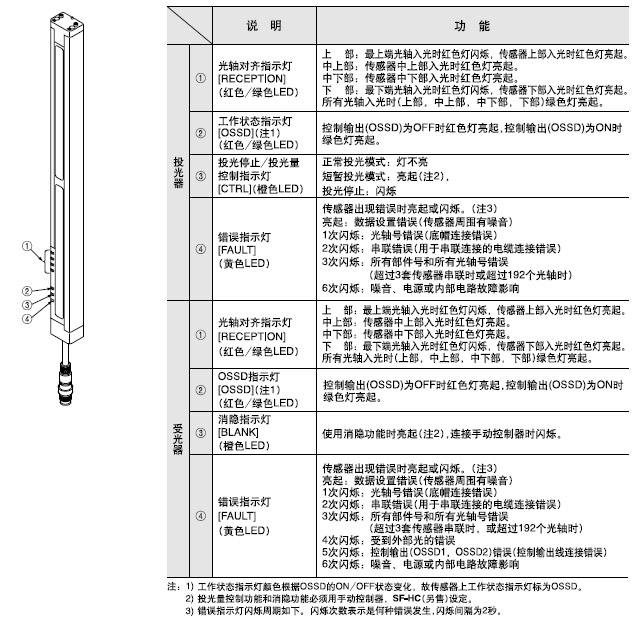
δ¶ÔÆëµÄ¹âÖáÇåÎú¿É¼û
¹âÖá¶ÔÆëָʾµÆ·Ö²¼ÔÚ´«¸ÐÆ÷µÄËĸö²¿·Ö¡£µ±¹âÊø¶ÔÆëʱ£¬¸Ã²¿·ÖָʾµÆÁÁ³ÉºìÉ«£¬Óû§¿É¼òµ¥·Ö±æÄÄЩ¹âÖá¶ÔÆëÁË¡£Ò»µ©ËùÓÐ¶ÔÆëÍê³É£¬ËùÓÐָʾµÆ¶¼ÁÁ³ÉÂÌÉ«¡£¶ÔÆë¹âÖáµÄ×î³õ£¬µ±µ×¶ËºÍ¶¥¶ËµÄ¹âÖá(±ê×¼¹âÖá)¶ÔÆëºó£¬ÏàÓ¦µÄµ×¶ËºÍ¶¥¶Ë¶ÔÆëָʾµÆ³ÊºìÉ«ÉÁ˸¡£ËùÒÔ£¬ÔÚ¶¥¶Ë»òµ×¶Ë¼òµ¥°Ñ¹âÖá¶ÔÆëºó£¬Ñش˹âÖáÐýת¹âÄ»´«¸ÐÆ÷¼´¿É¡£¹âÖá¶ÔÆëָʾµÆÔÚͶ¹âÆ÷¼°ÊܹâÆ÷É϶¼Óзֲ¼£¬¹Ê¶ÔÆëºÍδ¶ÔÆëµÄ¹âÖá¿ÉһĿÁËÈ»¡£
 |
 |

ʶ±ðÍⲿ¹âÏß²¢Ô¤·À¹ÊÕÏÕâÏÄÜʹ´«¸ÐÆ÷ʶ±ð²¢µÖÖÆÍⲿÉ豸Ͷ¹âµÄ¸ÉÈÅ£¬´Ó¶ø×èÖ¹ÖîÈçÓɰüÀ¨¸½½üÆäËû¹¤×÷µÄ´«¸ÐÆ÷µÄ¹âÏß¡¢¹âÊøÐ¹Â¶¡¢AGV¼°ÆäËûÐýתÐÔ¹âÔ´¶øÒýÆðµÄ¹ÊÕÏ¡£¼õÉÙÍⲿ¹âÏßËùÒýÆðµÄ¹ÊÕÏÊýÁ¿£¬¼ì²âϵͳ¾Í»áÉÙÊܸÉÈÅ£¬´Ó¶øÓÐЧÌá¸ß¹¤×÷ЧÂÊ¡£
ÎÞÐè·À¸ÉÈÅÏß¼´¿É¼õÉÙÏ໥¸ÉÈÅELCA(Extraneous Light Check &Avoid)¹¦ÄÜÔöÇ¿ÁË·ÀÏ໥¸ÉÈŹ¦ÄÜ¡£ ELCA¼õÉÙÁ˾ßÓÐÀàËÆÓÚSF4-AHϵÁÐËùÓùâÏ߯µÂʵÄÍⲿ¹âÏߵĸÉÈÅ¡£Òò´ËÒ²¿É¼õÉÙ¸½½üSF4-AHϵÁд«¸ÐÉ豸µÄÏ໥¸ÉÈÅ¡£
SF4-AHϵÁоßÓÐͶ¹âÁ¿¿ØÖƹ¦ÄÜ£¬´Ó¶øÊ¹Ô´ÓÚÖÜΧ´«¸ÐÆ÷µÄ¸ÉÈÅ×îС»¯¼õÉÙͶ¹âÆ÷µÄͶ¹âÁ¿£¬´Ó¶ø¼õÉÙÕâÀà¹â¶ÔÖÜΧÉ豸²úÉúµÄÓ°Ïì¡£(¿Éͨ¹ýÊÖ¿ØÑ¡ÔñʵÏÖ)¡£
¹âÖá¶ÔÆë¿ÉÔÚͨµçǰ¾«È·Íê³ÉÈç¹ûÔËÓÃSF-LAT-2N¼¤¹â¶ÔÆëÆ÷£¬²ÉÓÃÒ×¼ûµÄ¹âÖá¶ÔÆëÊӵ㣬¼´Ê¹ÊÇÔ¶¾àÀë°²×°£¬Ò²¿É¼òµ¥¿ìËÙÍê³É¡£´ËÍ⣬SF-LAT-2N¼¤¹â¶ÔÆëÆ÷ÊÇµç³Ø´ø¶¯µÄ£¬ËùÒÔ¹âÖá¶ÔÆë¿ÉÔÚ¹âÄ»´«¸ÐÆ÷ʵ¼ÊͨµçǰÍê³É¡£
´®ÁªÁ¬½ÓµÄÔËÓýµµÍÁË×ܳɱ¾ÔËÓÃÁíÊ۵Ĵ®ÁªÁ¬½ÓµçÀ£¬Ò»¸öϵÁпÉÁ¬½Ó¶à´ï3Ì׵Ĵ«¸ÐÆ÷(¹²192¹âÖá)¡£ÒÔǰ3Ì×´«¸ÐÆ÷¾ÍÐèÒª3¸ö¶ÀÁ¢µÄÏß·£¬¶øÏÖÔÚ1¸ö¾Í´ïµ½Í¬ÑùµÄЧ¹û£¬ÕâÑùÊ¡ÁË·³ËöµÄÏß·½ÚÔ¼Á˳ɱ¾¡£´ËÍ⣬Á¬½ÓÄÜÔ´ÐèÇóÉÙ£¬°²È«¼ÌµçÆ÷²¿¼þÖ»Ðè1¸ö£¬´Ó¶ø´ó·ù¶È½µµÍÁ˳ɱ¾¡£
| ¿ÉÁ¬½Ó¶à´ï3Ì×´«¸ÐÆ÷(¹²192¹âÖá) |
¿ÉÓõĴ®ÁªµçÀ³¤3m |
 |
 |
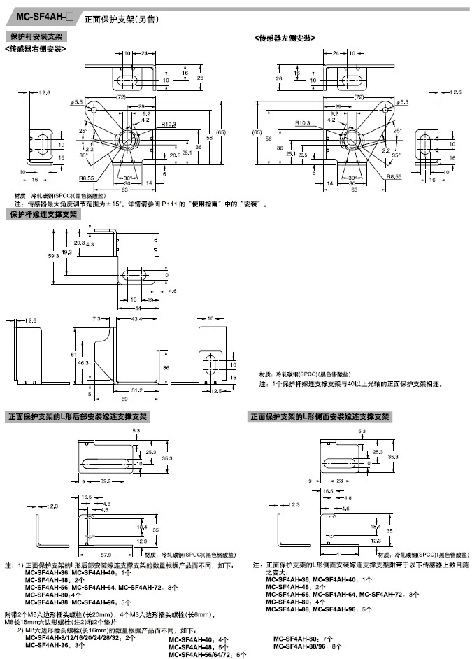
°²×°Ö§¼Ü±ãÓÚ¹âÖá¶ÔÆë¸½´øµÄºó²¿°²×°Ö§¼Ü(MS-SF2N-1)Ò×ÓڽǶȵ÷Õû£¬´Ó¶øÊ¹¹âÖá¶ÔÆëºÜ¼òµ¥¡£´ËÍ⣬ »¹±¸ÓÐÁíÊ۵IJàÃæ°²×°Ö§¼Ü(MS-SF2N-3)¡£
ÕýÃæ·À»¤ÕÖ±£»¤¼ì²â±íÃæÈç¹ûSF4-AHϵÁа²×°ÔÚ¶ñÁӵĻ·¾³ÖУ¬ÕýÃæ·À»¤ÕÖ(FC-SF4A-H¡õ)»á±£»¤¼ì²â±íÃæÃâÊÜË𻵡£
¼ì²â±íÃæµÄ³å»÷±£»¤¶ÔÓÚ¼ì²âÎïÌå³å»÷£¬±¸ÓÐÕýÃæ±£»¤²¿¼þ¿ÉÓÐЧ·ÀÖ¹¶ÔÆä¼ì²â±íÃæµÄÆÆ»µ(ÁíÊÛ)¡£
¼ì²â±íÃæµÄ·À½¦¹¦ÄÜ(ÓÃÓÚPNPÊä³öÐÍ)ÏÖÔÚ¿ÉÀûÓ÷À½¦ÕÖÐÍÀ´±£»¤¼ì²â±íÃæÃâÊÜÀ´×Ôº¸½Ó»úÆ÷º¸ÔüµÄË𻵣¬¶øÇÒ°²×°ÔÚ´«¸ÐÆ÷ÄÚµÄÕýÃæ·À»¤ÕÖÒ²¿ÉÓÃÀ´ÍêÈ«·ÀÖ¹ÆÃ½¦Î︽×ÅÓÚ¼ì²â±íÃæ¡£ ´ËÍ⣬±»¼ì²âÎTʹ½Ó´¥´«¸ÐÆ÷£¬¼ì²â±íÃæÊܵ½±£»¤¡£¶øÇÒELCA¹¦ÄܲÉÈ¡ËùÓпÉÄܵĴëÊ©À´·ÀÖ¹ÆÃ½¦ÎïËùÖµĹÊÕÏ¡£
SF-HCÊÖ¶¯¿ØÖÆÆ÷ʹ¸÷ÖÖÉ趨¶¼¿ÉÊÖ¶¯½øÐÐÏÖÔڵIJúƷϵÁаüÀ¨ÊÖ¶¯¿ØÖÆÆ÷ʹÓû§¿ÉÑ¡Ôñ¸÷ÖÖÉ趨¡£ÈκÎÈ˶¼Äܼòµ¥½øÐй¦ÄÜÉ趨¡£
SF4-AHϵÁоßÓй̶¨ÏûÒþ¹¦ÄÜ¿ÉÔÊÐíÖ¸¶¨µÄ¹âÖáÓÐÑ¡ÔñÐԵı»·âËø¶ø²»»áµ¼Ö¿ØÖÆÊä³ö(OSSD)Êä³öOFFÐźš£ÔÚÔËÐÐijЩ³ÌÐòʱ£¬¹Ì¶¨µÄÕϰ·âËøÁËÌØ¶¨µÄ¹âÖáʱ£¬ÕâÖÖÐÔÄܾÍÏÔ³öÆä±ãÀûÐÔ¡£ ¶øÇÒÕâÖÖ¹¦Äܼ«°²È«£¬Èç¹û¹Ì¶¨µÄÕϰ×îÖÕ´Ó¼ì²âÁìÓòÒÆÈ¥£¬¿ØÖÆÊä³ö(OSSD)¾Í»á×Ô¶¯Êä³öOFFÐźš£
1,2»ò3¸ö·ÇÖ¸¶¨µÄ¹âÖá¿É±»Ñ¡ÔñÎÞЧ¡£Èç¹û±»·âËøµÄ¹âÖáÊýĿСÓÚ»òµÈÓÚÉ趨µÄÊýÄ¿£¬¿ØÖÆÊä³ö(OSSD)¾Í²»»áÊä³öOFFÐźš£Èç¹û¹¤×÷¼þÖØÕûÆÚ¼ä»òµ±²ÄÁϱØÐëͨ¹ý¹âÄ»´«¸ÐÆ÷¼ì²âÁìÓòÈÓ³ö£¬¶ø±ØÐë¸Ä±ä¼ì²âÁìÓòÕϰλÖÃʱ£¬´Ë¹¦ÄÜÓÐÓá£
¿É¸ù¾Ý´úÂë±íÊäÈë4λ´úÂë(Êý×Ö)£¬Ö±½ÓÑ¡¶¨¸÷ÏÄÜ¡£
¿É¸Ä±ä¸¨ÖúÊä³öµÄÊä³ö½á¹¹¡£Êä³ö·½Ê½¿É´ÓÒÔϽṹÖÐÑ¡Ôñ£ºÓë¿ØÖÆÊä³öÏàͬ£»¿ØÖÆÊä³öµÄµ¹×ª¹¤×÷£»Î´Í¶¹âʱON(Ëø¶¨Ê±)£»Î´Í¶¹âʱOFF(Ëø¶¨Ê±)¡£
| ´úÂë |
µÚ4λ |
µÚ3λ |
µÚ2λ |
µÚ1λ |
| ¹Ì¶¨ÏûÒþ |
²»¹Ì¶¨ÏûÒþ |
Ͷ¹âÁ¿¿ØÖÆ |
¸¨ÖúÊä³ö |
 |
ÎÞЧ |
ÎÞЧ |
ÎÞЧ |
¿ØÖÆÊä³öµÄµ¹×ª¹¤×÷ |
 |
ÎÞЧ/×Ô¶¯É趨 |
Ô¤Éè¹âÖáÊý=1 ¹âÖáÁ½¶ËÎÞЧÉ趨=Î޵Р|
ÎÞЧ |
Óë¿ØÖÆÊä³öµÄµ¹×ª¹¤×÷ |
 |
- |
Ô¤Éè¹âÖáÊý=2 ¹âÖáÁ½¶ËÎÞЧÉ趨=Î޵Р|
- |
δͶ¹âʱ £¨Ëø¶¨Ê±£©£ºON |
 |
- |
Ô¤Éè¹âÖáÊý=3 ¹âÖáÁ½¶ËÎÞЧÉ趨=Î޵Р|
- |
δͶ¹âʱ £¨Ëø¶¨Ê±£©£ºOFF |
 |
- |
Ô¤Éè¹âÖáÊý=1 ¹âÖáÁ½¶ËÎÞЧÉ趨=Î޵Р|
- |
- |
 |
- |
Ô¤Éè¹âÖáÊý=2 ¹âÖáÁ½¶ËÎÞЧÉ趨=Î޵Р|
- |
- |
 |
- |
Ô¤Éè¹âÖáÊý=3 ¹âÖáÁ½¶ËÎÞЧÉ趨=Î޵Р|
- |
- |
Ͷ¹âÁ¿¿ØÖƹ¦ÄÜ ¸Ã¹¦ÄܼõÉÙͶ¹âÁ¿¡£µ±ÒªÇóͶ¹â¶ÔÆäËûÉ豸ӰÏì×îСʱʹÓá£(¼ì²â¾àÀë5m) °²×°Ï¸½Ú¼à¿Ø¹¦ÄÜ ¸Ã¹¦ÄÜÈÃÓû§È·ÈÏ´«¸ÐÆ÷°²×°µÄÿ¸öϸ½Ú¡£ ±£»¤¹¦ÄÜ ¸Ã¹¦ÄÜʹÓÃ4λÃÜÂëËø¶¨´«¸ÐÆ÷¡£Ö»ÓÐÊäÈëÃÜÂë²Å¿É¸Ä±ä´«¸ÐÆ÷¹¦ÄÜÉ趨¡£¿É·ÀÖ¹µÚÈý·½ÒâÍâ¸Ä¶¯É趨¡£ ¸´Öƹ¦ÄÜ ÔÊÐí½«É趨ϸ½Ú¸´ÖƵ½±ðµÄ´«¸ÐÆ÷Àï¡£ÈôͬÑùµÄÉ趨±ØÐë¶à´ÎÊäÈëµ½²»Í¬µÄ´«¸ÐÆ÷À¸Ã¹¦ÄܿɽÚʡʱ¼ä¡£
¶©¹ºÖ¸ÄÏ
´«¸ÐÆ÷ (´«¸ÐÆ÷²»¸½´øÆ¥ÅäµçÀ£¬ÇëÁíÐж©¹º¡£)
| ÖÖÀà |
ÐÎ×´ |
¼ì²â¾àÀë (×¢1) |
ÐͺŠ|
¹âÖáÊý |
±£»¤¸ß¶È (mm) |
| NPNÊä³öÐÍ |
PNPÊä³öÐÍ |
ÆÕ ͨ ºÐ ÐÍ |
 |
 |
SF4-AH8-N |
SF4-AH8 |
8 |
190 |
| SF4-AH12-N |
SF4-AH12 |
12 |
270 |
| SF4-AH16-N |
SF4-AH16 |
16 |
350 |
| SF4-AH20-N |
SF4-AH20 |
20 |
430 |
| SF4-AH24-N |
SF4-AH24 |
24 |
510 |
| SF4-AH28-N |
SF4-AH28 |
28 |
590 |
| SF4-AH32-N |
SF4-AH32 |
32 |
670 |
| SF4-AH36-N |
SF4-AH36 |
36 |
750 |
| SF4-AH40-N |
SF4-AH40 |
40 |
830 |
| SF4-AH48-N |
SF4-AH48 |
48 |
990 |
| SF4-AH56-N |
SF4-AH56 |
56 |
1,150 |
| SF4-AH64-N |
SF4-AH64 |
64 |
1,310 |
| SF4-AH72-N |
SF4-AH72 |
72 |
1,470 |
| SF4-AH80-N |
SF4-AH80 |
80 |
1,630 |
| SF4-AH88-N |
SF4-AH88 |
88 |
1,790 |
| SF4-AH96-N |
SF4-AH96 |
96 |
1,950 |
´ø ·À ½¦ ñ ÐÍ |
 |
- |
SF4-AH8-H |
8 |
190 |
| - |
SF4-AH12-H |
12 |
270 |
| - |
SF4-AH16-H |
16 |
350 |
| - |
SF4-AH20-H |
20 |
430 |
| - |
SF4-AH24-H |
24 |
510 |
| - |
SF4-AH28-H |
28 |
590 |
| - |
SF4-AH32-H |
32 |
670 |
| - |
SF4-AH36-H |
36 |
750 |
| - |
SF4-AH40-H |
40 |
830 |
| - |
SF4-AH48-H |
48 |
990 |
| - |
SF4-AH56-H |
56 |
1,150 |
| - |
SF4-AH64-H |
64 |
1,310 |
| - |
SF4-AH72-H |
72 |
1,470 |
| - |
SF4-AH80-H |
80 |
1,630 |
| - |
SF4-AH88-H |
88 |
1,790 |
| - |
SF4-AH96-H |
96 |
1,950 | ×¢£º 1) ¼ì²â¾àÀëÊÇͶ¹âÆ÷ºÍÊܹâÆ÷Ö®¼äµÄ¿ÉÉ趨·¶Î§¡£´«¸ÐÆ÷¿É¼ì²â0.3mÒÔÄÚµÄÎïÌå¡£ 2) ¼ÇÔØÓÚ²úÆ·ÃúÅÆµÄÐͺÅÖдæÔÚ·ûºÅ¡°P¡±µÄ»úÐÍÖ¸µÄÊÇͶ¹âÆ÷¡¢´æÔÚ·ûºÅ¡°D¡±µÄ»úÐÍÖ¸µÄÊÇÊܹâÆ÷¡£

| ÖÖÀà |
ÐÎ×´ |
ÐͺŠ(×¢1) |
˵Ã÷ |
| ±¡ÐÍ¿ØÖƵ¥Ôª |
 |
SF-C13 |
·ûºÏ×î¸ß4Àà¿ØÖÆ¡£ |
ÊÖ¶¯¿ØÖÆÆ÷
Æ¥ÅäµçÀÂ(´«¸ÐÆ÷²»¸½´øÆ¥ÅäµçÀ£¬ÇëÁíÐж©¹º)
±¸Óò¿¼þ(´«¸ÐÆ÷¸½¼þ)
Åä¼þ(ÁíÊÛ)
 |
 ×¢£ºÒÔÉÏÐͺŽöΪµ¥¼þ¶ø·Ç³ÉÌײ¿¼þ¡£Í¶¹âÆ÷/ÊܹâÆ÷¶¼°²×°Ðè2¸ö(2Ì×)¡£ |
ÕýÃæ·À»¤ÕÖ
ÏÁ·ì͸¹âÕÖ
ÕýÃæ±£»¤Ö§¼Ü
 |
 |
 ×¢£º 1)Ì×ÊýÊÓ²úÆ·¶ø¶¨£¬ÏêÇéÇë²ÎÔÄPDF.119¡°³ß´ç¡± 2)¸´ºÏ¹âÖá´«¸ÐÆ÷Ðè¼ÞÁ¬Ö§³ÅÖ§¼Ü(36¹âÖáÒÔÉÏ)£¬²»¿ÉÓÃÖÐÐݲװ¼Ü°²×°ÓÚÂÁÖÆ¿ò¼ÜÉÏ¡£ |
¹âÄ»´«¸ÐÆ÷´óÏÔʾÆ÷
²àÃæ°²×°Ö§¼Ü
ÖÐÐݲװ֧¼Ü
¼¤¹â¹âÖá¶ÔÆëÆ÷
UÐβàÃæ°²×°¼ÞÁ¬Ö§³ÅÖ§¼Ü
|
|
|