|
安科瑞電氣股份有限公司,上海 嘉定 201801
1 概述
“節能減排”目前已成為衡量企業未來可持續發展的重要指標。隨著電信、yinxingyijidaxingqiyeyewudekuozhan,pangdadeshujuzhongxinsuodailaideguanliweihufeiyonghebuduanpanshengdedianfeiyichengweiqiyezhuguandeyidananti。dianqiyinhuanshiruhechanshengde?diannengshiruhexiaohaode?benwenjieshaoshujuxinxizhongxinjiyudaoguishianzhuangdianlijiankongyibiaodedianyuanjiankongguanlifangan。gaifanganzhuyaoyouchumoping、單相或三相交流信號采集單元、互感器構成,能對數據中心電源進行實時采集與顯示電壓、電流、有功功率、無功功率、功率因數、諧波和電能。
2 電源管理係統宜選導軌式安裝電力監控儀表
安科瑞導軌式安裝電力監控儀表采用DIN35mm導軌式安裝結構、LCD顯示,測量電能及其它電參量,可進行時鍾、費率時段等參數設置,並具有電能脈衝輸出功能;可用RS485通訊接口與上位機實現數據交換。
該類型表具有體積小巧、精度高、可靠性好、安裝方便等優點,性能指標符合國標GB/T 17215、GB/T 17883和電力行業標準DL/T614對電能表的各項技術要求,適用於政府機關和大型公建中對電能的分項計量,也可用於企事業單位作電能管理考核。
3 通訊機房(數據信息中心)電源管理係統表計的選型方案
|
應用場合 |
|
型號 |
主要功能 |
|
電源進線 |
 |
DTSD1352-H (ADL-3000EH) |
測量相電壓、線電壓、電流、有功功率(分相與合相)、無功功率(分相與合相)、視在功率(分相與合相)、功率因數(分相與合相)等;四象限電能計量;總諧波含量測量 |
|
大電流三相分支回路 |
DTSD1352 (ADL-3000E) |
一次輸入0-80A,測量相電壓、線電壓、電流、有功功率(分相與合相)、無功功率(分相與合相)、視在功率(分相與合相)、功率因數(分相與合相)等;四象限電能計量 |
|
小電流三相分支回路或單相分支回路 |
 |
ADL-300E |
二次輸入0-50mA,測量相電壓、線電壓、電流、有功功率(分相與合相)、無功功率(分相與合相)、視在功率(分相與合相)、功率因數(分相與合相)、有功電能及無功電能 |
 |
AMC16-3E3 |
9路單相(3路三相)I、U、P、Q、F測量;有功電能計量;18DI+1DO、RS485通訊接口、Modbus協議 |
|
AMC16-1E9 |
|
開關量采集 |
 |
ARTU-K32 |
32路開關量采集、SOE事件記錄、RS485通訊接口、Modbus協議 |
4 通訊機房(數據信息中心)電源管理係統
4.1 電源監控配電方案
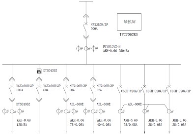
典型一次圖見圖1,由DTSD1352-H、DTSD1352、ADL-300E監控儀表及TPC7062KS觸摸屏組成電力監控係統。
圖1 電源監控一次配電圖
4.2 組網結構圖
係統采用三層網絡分布式結構,子站直接由人機界麵TPC7062KS屏進行監控、采集現場儀表,見圖2。
圖2 電源監控組網結構圖
4.3 電源進線監控
電源進線監控由顯示觸摸屏與DTSD1352-H組成。
4.3.1 觸摸屏
觸摸屏采用昆侖通態7英寸屏,型號為TPC7062KS,工作電源DC24V/30W,zhuyaoxingnengtedianyou,juyoulianggeketongshishiyongdechuanxingkou,yongyuduotaiyibiaotongxun,keduqusuoyouyibiaocaijidedaodeshuju,bingnengzaixianshezhiyibiaodebianbi。chumopingcaijidedaodeshujuketongguoRS232接口,以Modbus-RTU協議轉發給其它設備(如計算機),若需采用RS485傳輸,需另行加配RS485-RS232轉換器。
觸(chu)摸(mo)屏(ping)主(zhu)要(yao)實(shi)現(xian)的(de)功(gong)能(neng)是(shi)及(ji)時(shi)將(jiang)各(ge)個(ge)儀(yi)表(biao)采(cai)集(ji)到(dao)的(de)數(shu)據(ju)動(dong)態(tai)顯(xian)示(shi)到(dao)人(ren)機(ji)交(jiao)互(hu)界(jie)麵(mian),在(zai)需(xu)要(yao)報(bao)警(jing)的(de)時(shi)候(hou)進(jin)行(xing)報(bao)警(jing)或(huo)報(bao)警(jing)數(shu)據(ju)存(cun)儲(chu)上(shang)傳(chuan),以(yi)及(ji)實(shi)時(shi)、曆史報警顯示等。所能存儲的報警記錄大於20000條。
主要檢測數據對象有母線電流、電壓、功率、電能、母線諧波數據,各個支路電壓、電流、功率、電能,及各個支路的分合狀態。顯示以數字顯示、折線圖、條形圖為主,見圖3。
圖3 監控係統界麵
觸摸屏安裝為嵌入式,觸摸屏麵框尺寸226.5×163mm,開孔尺寸215×152mm。
觸摸屏也可選配其它廠家具有相同性能的產品。
4.3.2 母線電參數檢測儀表――DTSD1352-H
儀表不需要工作電源,功耗≤3W;電壓信號輸入,220V/380V 50Hz;電流信號輸入,不大於63A時直接輸入,63A以上二次輸入0~5A。主要功能有測量常規的三相交流電量,如相電壓、線電壓、電流、有功功率、無功功率、視在功率、功率因數等,其中功率與功率因數可同時檢測分相與三相總的參量;電能有四象限電能,包括吸收有功電能,釋放有功電能,感性無功電能,容性無功電能;以及測量電壓、電流總諧波含量,用戶可以方便的對供電電網質量進行分析。
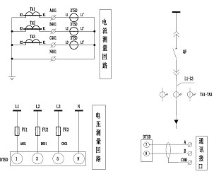
二次原理見圖4,DTSD1352-H在電流不大於63A時可直接接入,不需要經過電流互感器,大於63A時采用二次輸入0-5A。安裝結構為DIN35mm導軌,見圖5。

圖4 DTSD1352-H二次原理圖

圖5 DTSD1352-H儀表外形及尺寸
4.4 支路監控
支路監控有2種監控方案。
4.4.1 大電流分支回路監控儀表DTSD1352
該儀表主要監測電流大於63A的回路。儀表不需要工作電源,功耗≤2W;電壓信號輸入,0~300V/50Hz;電流信號輸入,一次電流80A以下直接輸入,80A以上二次輸入0~5A。主要功能有測量常規的三相交流電量,如相電壓、線電壓、電流、有功功率(分相與合相)、無功功率(分相與合相)、視在功率(分相與合相)、功率因數(分相與合相)等;電能有四象限電能,包括吸收有功電能,釋放有功電能,感性無功電能,容性無功電能;該儀表可用於1個三相回路中也可用於3個獨立的單相回路。
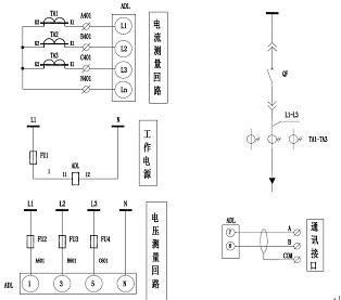
二次原理同DTSD1352-H,見圖4。安裝結構為DIN35mm導軌,見圖6。
圖6 DTSD1352儀表外形及尺寸
4.4.2 小電流分支回路監控儀表 ADL-300E
該儀表主要監測電流小於63A的回路。儀表工作電源,AC85~265V,功耗≤2W;電壓信號輸入,220V/380V 50Hz;電流信號輸入,二次輸入0~50mA。主要功能有測量常規的三相交流電量,如相電壓、線電壓、電流、有功功率、無功功率、視在功率、功率因數,其中功率與功率因數可同時檢測分相與三相總的參量;電能計量包括有功電能及無功電能;該儀表可用於三相回路中也可用於3個獨立的單相回路。
用於三相回路的二次原理見圖7,ADL-300E支持0.05A電流信號接入,電流互感器二次側不允許接地。

圖7 ADL-300E用於三相回路二次原理圖
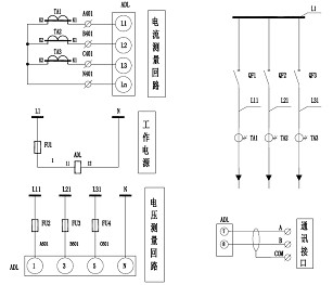
用於3個獨立的單相回路二次原理見圖8,ADL-300E支持0.05A電流信號接入,電流互感器二次側不允許接地。安裝結構為DIN35mm導軌,見圖9。

圖8 ADL-300E用於3個獨立的單相回路二次原理圖

圖9 ADL-300E儀表外形及尺寸
6 係統報價
單位:元(RMB)
|
名稱 |
型號 |
單位 |
麵價 |
備注 |
|
監控主機 |
IPC610H/PIV2.8G/1G/120G/166x DVD/KB+MS/D-Link530+外設 |
台 |
8500 |
均可用戶自備,以當時市場價格為準,該報價僅供參考 |
|
顯示器 |
三星19寸液晶顯示器 |
台 |
3000 |
|
三星22寸液晶顯示器 |
台 |
3800 |
|
打印機 |
HP LaserJet 1020 A4 |
台 |
2500 |
|
EPSON-LQ1600KIIIH A3 |
台 |
4000 |
|
UPS電源 |
山特C1KS |
台 |
5000 |
|
山特C2KS |
台 |
6500 |
|
通訊線纜 |
五類線 |
米 |
4.6 |
|
屏蔽雙絞線RVVP 2×1.0 |
米 |
5.6 |
|
光纖(多模) |
米 |
6.6 |
|
通訊機櫃 |
1200×600×600 |
麵 |
3000 |
|
2200×600×600 |
麵 |
5000 |
|
光電轉換 |
HTB-1000 |
隻 |
750 |
遠距離傳輸 |
|
終端盒 |
隻 |
60 |
|
尾纖 |
麵 |
50 |
|
耦合器 |
麵 |
50 |
|
熔接點 |
個 |
50 |
|
通訊轉換 |
擴展卡ACRNET-PCI/4 |
塊 |
3000 |
擴展卡 |
|
串口服務器ACRNET-PORT(2口) |
隻 |
3000 |
串口服務器 |
|
串口服務器ACRNET-PORT(4口) |
隻 |
5500 |
|
通訊前置機ACRNET-UC02(2口) |
隻 |
4000 |
通訊前置機 |
|
通訊前置機ACRNET-UC04(4口) |
隻 |
6000 |
|
通訊前置機ACRNET-UC08(8口) |
隻 |
11500 |
|
通訊管理機ACRHMI |
台 |
30000 |
人機界麵 |
|
組網設備 |
網絡交換機EDS-208 |
台 |
3000 |
局域組網 |
|
網絡交換機EDS-408 |
台 |
8500 |
|
監控軟件 |
Acrel監控組態軟件 |
係統組態軟件
圖形組態軟件
電能管理軟件
數據庫軟件 |
套 |
3萬 |
設備數量1~10 |
|
4萬 |
設備數量11~20 |
|
6萬 |
設備數量21~40 |
|
8萬 |
設備數量41~80 |
|
10萬元以上 |
設備數量80以上 |
|
雙機版 |
|
套 |
|
單機價格×1.5 |
|
數據轉發 |
每+1用戶 |
套 |
3000 |
|
|
Web發布 |
每+1用戶(總用戶數≤5) |
套 |
5000 |
|
|
電力儀表 |
DTSD1352-H |
台 |
2950 |
|
|
DTSD1352 |
台 |
2050 |
|
|
ADL-300E |
台 |
1200 |
|
|
AMC16-3E3 |
台 |
3250 |
|
|
AMC16-1E9 |
台 |
3250 |
|
|
ARTU-K32 |
台 |
3200 |
|
注:電力儀表和導軌式安裝電表可按上述報價的70%優惠供應。
7 結束語
隨(sui)著(zhe)信(xin)息(xi)時(shi)代(dai)的(de)來(lai)臨(lin),各(ge)類(lei)數(shu)據(ju)信(xin)息(xi)中(zhong)心(xin)的(de)建(jian)設(she)進(jin)一(yi)步(bu)加(jia)快(kuai),對(dui)數(shu)據(ju)的(de)安(an)全(quan)防(fang)護(hu)也(ye)需(xu)要(yao)進(jin)一(yi)步(bu)加(jia)強(qiang)和(he)完(wan)善(shan),希(xi)望(wang)通(tong)過(guo)一(yi)定(ding)數(shu)量(liang)的(de)數(shu)據(ju)中(zhong)心(xin)的(de)建(jian)設(she)和(he)運(yun)營(ying)管(guan)理(li),能(neng)為(wei)其(qi)數(shu)據(ju)信(xin)息(xi)電(dian)源(yuan)安(an)全(quan)設(she)計(ji)提(ti)供(gong)更(geng)多(duo)的(de)有(you)效(xiao)經(jing)驗(yan)。該(gai)係(xi)統(tong)先(xian)後(hou)在(zai)中(zhong)國(guo)銀(yin)行(xing)信(xin)息(xi)大(da)樓(lou)、中國移動東北三省通訊基站改造、吉林聯通、中國郵政總局機房改造等項目中應用,為數據中心電源安全、綠色運行提供了保障。
|