|
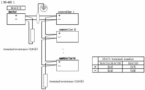
SHIMAX MAC3係列儀表支持RS485接口與紫金橋軟件的通訊,通訊協議是Modbus協議。下圖是SHIMAX MAC3通過RS485與紫金橋軟件通訊的接線圖。

MAC3通過RS485與紫金橋軟件通訊接線圖
還要對SHIMAX MAC3係列儀表的通訊參數進行設定,按住儀表的MENU鍵3s,會彈出 ,通過向上鍵選到 ,通過MENU一次進行如下參數設置。


這裏需要注意,選擇Modbus通訊,需要選擇後麵的兩種檢驗方式。

下麵以Modbus RTU方式為例,通訊參數設置為:9600,8,無,1。校驗方式為CRC-16.設備地址為1。
這樣SHIMAX MAC3係列儀表端的通訊參數就設置好了。
下麵打開紫金橋軟件,在數據庫頁下麵找到設備驅動/MODBUS/MODBUS儀表/MODBUS(ASCII&RTUCH串行口通訊),雙擊彈出設備定義對話框,


這裏的設置大部分都不需要特殊說明,需要說的是簡易把數據更新周期設置的稍大一點,因為如果是50ms左右,表有些時候就不正常通訊,造成超時。通訊參數要設置好,和儀表的一致,這裏是9600,8,無,1。
點擊下一步,進入modbus設備定義對話框。

這裏協議類型選擇RTU,存儲器類型選擇16位,支持6號命令。單擊完成及完成了設備定義。

雙擊點組態,進入數據庫組態,建立模擬IO點A1,新建外部連接,

SHIMAX MAC3係列儀表支持Modbus的03,06 號命令,也就是HR寄存器。根據地址標設置好偏置,選擇數據類型,讀寫屬性等。這樣通訊的相關設置就完成了,運行係統就可以通訊了。
具體的偏置地址標請參考SHIMAX MAC3儀表通訊說明書。本文後麵會有一個簡單的地址表。
通信地址表:
注意:這裏的地址是16進製的,而在紫金橋軟件中的偏置是10進製,需要進行轉換














注意:通過Modbus方式讀取數據,並不能把小數點讀取上來,也就是讀取的數據是個沒有小數點的整數。可以通過量程變換來解決,比如

他的小數點是固定的1位小數點,我們可以做如下量程變換

這樣,采集上來的數據就是我們需要的數據了。
|