|
摘要:本文簡要介紹了高壓變頻器原理、現場安裝調試情況,初步分析了高壓變頻器的節能效果,對認識了解高壓變頻器運行有一定的借鑒作用。 關鍵詞:引風機、高壓變頻調速裝置、控製
1.概 述 國電宣威發電有限責任公司地處雲南東北部,海拔1960m,現有投產裝機容量4×300MW。#7機組設計出力為:300MW,機爐配有兩台AN31e6(u19-10)型靜葉可調軸流式引風機,額定風量:321.4m3/h、全壓為5452Pa,軸功率:2104kW;配用YKK800-8-W型電動機,額定功率2500kW、額定電壓6kV、額定電流293A、功率因素:0.86、額定轉速:746r/min,電動機無調速裝置,靠改變風機靜葉的角度來調節風量。 發電廠的發電負荷根據電網要求,通常在額定負荷的50%~100%之間進行調整、變化,以滿足電網運行的要求;發電機輸出功率的變化,鍋爐係統相關設備也要隨著負荷的變化作相應的調整。鍋爐的送風量、引yin風feng量liang相xiang應ying變bian化hua,引yin風feng機ji出chu力li調tiao整zheng采cai用yong通tong過guo改gai變bian風feng機ji葉ye片pian的de角jiao度du來lai調tiao節jie。通tong過guo改gai變bian風feng機ji靜jing葉ye的de角jiao度du來lai調tiao節jie風feng量liang盡jin管guan比bi一yi般ban采cai用yong控kong製zhi入ru口kou擋dang板ban開kai度du來lai實shi現xian風feng量liang的de調tiao節jie有you一yi定ding的de節jie能neng效xiao果guo,但dan是shi節jie流liu損sun失shi仍reng然ran很hen大da,特te別bie是shi在zai低di負fu荷he運yun行xing時shi,電dian動dong機ji輸shu出chu功gong率lv大da量liang的de能neng源yuan消xiao耗hao在zai擋dang板ban上shang,節jie流liu損sun失shi更geng大da。其qi次ci靜jing葉ye調tiao節jie動dong作zuo遲chi緩huan,造zao成cheng機ji組zu負fu荷he調tiao整zheng響xiang應ying遲chi滯zhi。異yi步bu電dian動dong機ji在zai啟qi動dong時shi啟qi動dong電dian流liu一yi般ban達da到dao電dian動dong機ji額e定ding電dian流liu的de5-8倍,對電動機、動(dong)力(li)電(dian)纜(lan)造(zao)成(cheng)較(jiao)大(da)衝(chong)擊(ji),對(dui)廠(chang)用(yong)電(dian)係(xi)統(tong)穩(wen)定(ding)運(yun)行(xing)也(ye)有(you)一(yi)定(ding)的(de)影(ying)響(xiang),同(tong)時(shi)強(qiang)大(da)的(de)衝(chong)擊(ji)轉(zhuan)矩(ju)和(he)衝(chong)擊(ji)電(dian)流(liu),縮(suo)短(duan)了(le)電(dian)動(dong)機(ji)和(he)風(feng)機(ji)機(ji)械(xie)的(de)使(shi)用(yong)壽(shou)命(ming)。通(tong)過(guo)大(da)量(liang)應(ying)用(yong)表(biao)明(ming),應(ying)用(yong)高(gao)壓(ya)變(bian)頻(pin)調(tiao)速(su)裝(zhuang)置(zhi)來(lai)改(gai)變(bian)電(dian)機(ji)轉(zhuan)速(su),滿(man)足(zu)不(bu)同(tong)負(fu)載(zai)的(de)工(gong)藝(yi)要(yao)求(qiu),是(shi)解(jie)決(jue)以(yi)上(shang)矛(mao)盾(dun)的(de)有(you)效(xiao)手(shou)段(duan)。
2.高壓變頻器調速節能原理 2.1 高壓變頻調速的方法 高(gao)壓(ya)變(bian)頻(pin)調(tiao)速(su)是(shi)通(tong)過(guo)改(gai)變(bian)輸(shu)入(ru)到(dao)交(jiao)流(liu)電(dian)機(ji)的(de)電(dian)源(yuan)頻(pin)率(lv),從(cong)而(er)達(da)到(dao)調(tiao)節(jie)交(jiao)流(liu)電(dian)動(dong)機(ji)轉(zhuan)速(su)的(de)目(mu)的(de)。根(gen)據(ju)電(dian)機(ji)學(xue)原(yuan)理(li),交(jiao)流(liu)異(yi)步(bu)電(dian)動(dong)機(ji)轉(zhuan)速(su)由(you)下(xia)式(shi)確(que)定(ding): n=60f(1-S)/p (1) 式中:n―電動機轉速; f―輸入電源頻率; S―電動機轉差率; p―電機極對數。 由公式(1)可知,電動機的輸出轉速與輸入的電源頻率、轉差率、電機的極對數有關。交流電動機的直接調速方式主要有: 1) 變極調速(調整p) 2) 轉子串電阻調速或串級調速或內反饋電機(調整S) 3) 變頻調速(調整f) 其中高壓變頻調速的優點最多,得到了廣泛的應用。 根據流體力學的基本定律可知:風機(或水泵)類設備均屬平方轉矩負載,其轉速n與流量Q、壓力(揚程)H以及軸功率P具有如下關係: Q1/ Q2=n1/n2 (1) H1/ H2=(n1/n2)2 (2) P1/ P2=(n1/n2)3 (3) 式中:Q1、H1、P1―風機(或水泵)在n1轉速時的流量、壓力(或揚程)、軸功率; Q2、H2、P2―風機(或水泵)在n2轉速時的相似工況條件下的流量、壓力(或揚程)、軸功率。 由公式(1)、(2)、(3)可知,風機(或水泵)的流量與其轉速成正比,壓力(或揚程)yuqizhuansudepingfangchengzhengbi,zhougonglvyuqizhuansudelifangchengzhengbi。dangfengjizhuansujiangdihou,qizhougonglvsuizhuansudesancifangjiangdi,qudongfengjidedianjisuoxudediangonglvyikexiangyingjiangdi。 從(cong)上(shang)述(shu)分(fen)析(xi)可(ke)見(jian),調(tiao)速(su)是(shi)風(feng)機(ji)節(jie)能(neng)的(de)重(zhong)要(yao)途(tu)徑(jing)。采(cai)用(yong)高(gao)壓(ya)變(bian)頻(pin)調(tiao)速(su)可(ke)以(yi)實(shi)現(xian)對(dui)引(yin)風(feng)機(ji)電(dian)機(ji)轉(zhuan)速(su)的(de)線(xian)性(xing)調(tiao)節(jie),通(tong)過(guo)改(gai)變(bian)電(dian)動(dong)機(ji)轉(zhuan)速(su)使(shi)爐(lu)膛(tang)負(fu)壓(ya)、鍋爐氧量等指標與引風機風量維持一定的關係。
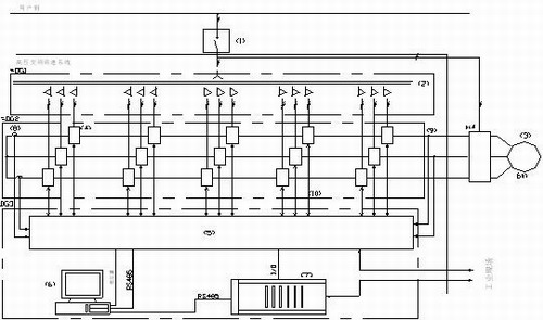
3.高壓變頻調速係統應用情況 3.1 高壓變頻器的組成 我公司采用北京利德華福電氣技術有限公司生產的HARSVERT-A係列電壓源型全數字控製高壓變頻器,高-高方式、采用H橋串聯方案。額定容量:1600KVA、額定電壓:6kV、額定電流:160A。高壓變頻器裝置由變壓器櫃、功率櫃、控製櫃、刀閘切換櫃四個部分組成,冷卻方式采用:空水冷卻係統。為單元串聯多電平結構,其原理如圖1所示。

圖1:單元串聯多電平高壓變頻器原理框圖 3.2 高壓變頻器與現場接口方案 北京利德華福電氣技術有限公司的高壓變頻器的控製部分由高速單片機、人機界麵和PLC共同構成。單片機實現PWM控製和功率單元的保護。人機界麵提供友好的全中文監控界麵,同時可以實現遠程監控和網絡化控製。內置PLC用於櫃體內開關信號的邏輯處理,可以和用戶現場靈活接口,滿足用戶的特殊需要。該高壓變頻器使用西門子S7-200係列PLC,具有較好的與DCS係統接口能力,根據風機的特性運行要求以及高壓變頻器控製的具體要求采取了相應控製方案。 1)DCS係統與高壓變頻器的接口方案 DCS係統與高壓變頻器之間的信號總共有10個,其中開關量信號8個,模擬量信號有2個。(以#1引風機為例)

2)DCS畫麵增加以下內容 為實現對高壓變頻引風機的啟停控製及轉速調節,在DCS畫麵上增加: 高壓變頻器啟停操作功能塊,用於遠方啟停高壓變頻器; 高壓變頻器轉速控製功能塊 高壓變頻器輕故障報警塊 重故障報警塊 工頻旁路狀態 FF。
3.3高壓變頻器運行方式及控製邏輯 引風機高壓變頻器電氣一次係統接線方式采用“一拖一”手動切換方式(虛線部分為新增加部分),如圖2:

圖2:引風機變頻器一次接線圖 高壓變頻器可根據運行方式需要,進行運行方式的切換,如:yitaibianpinyitaigongpindeyunxingfangshiheliangtaigongpindeyunxingfangshi。quedianshizaijinxinggaoyabianpinqiyunxingfangshiqiehuanshi,xuyaojiangjizufuhejinxingtiaozheng,jiangdifuhehou,tingzhi#1(或#2)引風機運行,方可進行引風機運行方式的切換操作。正常情況下,2台引風機投入高壓變頻調速運行方式。 高壓變頻器運行方式控製分為就地控製及遠程控製兩種。遠程控製狀態時,DCS輸出的轉速命令信號跟蹤高壓變頻器轉速反饋。就地控製時,對高壓變頻器遠方操作無效。 高壓變頻器受DCS控製時分自動和手動兩種方式。手動狀態時,運行人員通過改變DCS操作畫麵轉速控製塊控製高壓變頻器轉速,實現鍋爐負壓的調節。 1)引風機高壓變頻器啟動的允許條件 高壓變頻器啟動的前提為引風機電機6kV高壓開關必須合閘即啟動反饋為1。原有的風機啟動條件保留下來作為引風機高壓變頻器啟動的允許條件。高壓變頻器就地送來的就緒信號作為另一啟動條件。 在高壓變頻器調試過程中(不論遠程還是就地啟動時),發現由於高壓變頻器最低頻率設定不得低於15Hz,否則將造成高壓變頻器功率模塊“過流”,高壓變頻器跳閘;所以在電動機啟動時,高壓變頻器最低頻率設定不得低於15Hz的限製。
總結#1、2引風機高壓變頻器啟動必須具備以下3個條件:
1) #1、2引風機的6kV高壓側部分的啟動反饋為1;
2) #1、2引風機的高壓變頻器就地從其PLC送來的啟動就緒開關為1;
3) #1、2引風機高壓變頻器的轉速設定值的輸出不得小於30%。
3.4引風機高壓變頻涉及相關跳閘保護方麵
單側風機的高壓變頻器跳閘後,需要聯跳相應一側的送風機。並聯關相應擋板及靜葉的邏輯不變。
#1、2風機的高壓變頻跳閘後由於相應的高壓開關聯跳,故保留原鍋爐大連鎖跳閘回路不變。
鍋爐的安全運行是全廠動力的根本保證,雖然高壓變頻調速裝置可靠,但一旦出現問題,必須確保鍋爐安全運行,所以必須實現“工頻―變頻”運(yun)行(xing)的(de)切(qie)換(huan)。一(yi)旦(dan)一(yi)台(tai)引(yin)風(feng)變(bian)頻(pin)故(gu)障(zhang),無(wu)法(fa)在(zai)短(duan)時(shi)間(jian)內(nei)恢(hui)複(fu),需(xu)要(yao)引(yin)風(feng)自(zi)動(dong)控(kong)製(zhi)到(dao)原(yuan)先(xian)的(de)靜(jing)葉(ye)來(lai)調(tiao)整(zheng),在(zai)此(ci)背(bei)景(jing)和(he)需(xu)要(yao)下(xia),對(dui)一(yi)台(tai)引(yin)風(feng)變(bian)頻(pin)停(ting)掉(diao),用(yong)另(ling)一(yi)台(tai)引(yin)風(feng)變(bian)頻(pin)運(yun)行(xing);此時機爐負荷應保持在:180MW左右。
4.經濟綜合測試評價 4.1節能效益明顯 以下是#7機組#1、2引風機高壓變頻器運行後,對10月16日至20日生產數據進行初步比較。

通過上表數據對比,從節電率分析,#7機組在發電負荷相同情況時,#7機組兩台引風機工頻運行每天平均耗電量40761 kW8226;h,#7機組兩台引風機變頻運行每天平均耗電量 22869kW8226;h,節約電量17892kW8226;h,節電率為43.8%。
4.2 節能計算 兩台引風機節電費用,按全年運行7200小時的日負荷分布統計,使用兩台高壓變頻調速引風機,與以往的靜葉調節相比較,經計算,全年可以節省5367600kW8226;h。按發電成本電價0.2553元/kW8226;h計算,5367600kW8226;h×0.2553元/kW8226;h=1370348.28元。
5.存在的問題 #7、8爐引風機高壓變頻器投入運行,從現場情況分析,由於高壓變頻器與電動機之間的配置存在一些問題(高壓變頻器按照電機運行電流選型,造成高壓變頻器容量不足,導致高壓變頻器最高頻率限製為42Hz),影響電機的出力,在機爐額定負荷下調節裕量不足。目前,引風機變頻狀態運行,機爐負荷隻能運行在250MW左右。機爐滿負荷運行在300MW時,高壓變頻器節能效果並不明顯。
6.結束語 隨著廠網分開,競價上網日趨激烈,各發電企業競爭日趨白日化,努力提高發電設備的健康水平,滿足係統要求;加強管理,進一步挖潛節能潛力,建立節能型企業,提高發電企業競價上網的競爭能力,是發電廠發展的方向;采用高壓變頻技術對高能耗用電設備進行技術改造,不僅能直接收到降低廠用電、降低供電煤耗、增加上網電量帶來的直接經濟效益,而且對設備的安全、可靠運行,減少設備故障等都起到了積極的作用。唐立滇(國電宣威發電有限責任公司 雲南 宣威 655400 )
|