|
李大勇[1] 溫奇誌[1] 李克菲[2] 李昕[3] 李德普[3] 王永成[4] [1]中國市政工程東北設計院 [2]吉林市水務集團 [3]大連市水務集團 [4]阜新市水務集團
摘要:benwenjiehejilinshidisanjingshuichangbianpintiaosushejideshili,jieshaoleduodianpingtuopudianluyuanlijitedian。yingyongbianpinqidejienengfenxi,yijitichusongshuibengfangyouhuakongzhidexiangfa,bingqiejieshaoletiaosuxitongdebiaozhunpeizhi。
關鍵詞:變頻設備 脈衝寬度調製 拓撲電路 中壓變頻器
一、前言
高壓變頻器的產業化在80年nian代dai中zhong期qi才cai開kai始shi形xing成cheng,但dan隨sui著zhe大da功gong率lv電dian力li電dian子zi器qi件jian的de迅xun速su發fa展zhan和he巨ju大da的de市shi場chang推tui動dong力li,高gao壓ya變bian頻pin器qi十shi多duo年nian來lai的de發fa展zhan非fei常chang迅xun速su,使shi用yong器qi件jian已yi經jing從congSCR、GTR、GTO發展到IGBT、IECT、IGCT(SGCT)等deng,功gong率lv範fan圍wei從cong幾ji百bai千qian瓦wa到dao幾ji十shi兆zhao瓦wa,技ji術shu已yi經jing成cheng熟shu,可ke靠kao性xing得de到dao保bao證zheng,應ying用yong越yue來lai越yue廣guang。國guo內nei外wai生sheng產chan高gao壓ya變bian頻pin器qi的de廠chang家jia很hen多duo,如ru西xi門men子zi公gong司si、ABB公司、依林公司、日本的日立公司、國內的利德華福公司等均生產高壓變頻器。
從1984年開始,在沈陽市、哈爾濱市、大連市、鞍山市等城市的供水工程中不同時期先後選用了不同型號,一次側為10kV的變頻調速裝置。其中哈爾濱第三淨水廠用的是奧地利ELEN公司的設備(奧地利政府貸款)鞍山市三家淨水廠用的是德國西門子公司80年代末的設備(日元貸款)。大連沙河第二淨水廠用的是德國西門子公司1998年以後推出的最新的SIMOVERT(日元貸款)。吉林市第二淨水廠及第三淨水廠分別於2002年、2004年選用了和美國羅賓康技術等同的利德華福公司的10kV變頻調速設備。吉林市第三淨水廠產品新穎、運行可靠、技術先進、節能優點顯著。另外,以前我們對西門子公司不同時期的產品介紹很多,2005nianmeiguoluobinkanggongsibeiximenzigongsishougou,suoyibenwenzhongdianjieshaojilinshidisanjingshuichangshuibengjizudebianpintiaosu,qihenjuyoudaibiaoxing,erqieshijiyiyiyehenda。
吉林市自來水集團有限公司在考察對比了國內外多家高壓變頻器生產廠家後,決定選用北京利德華福電氣技術有限公司生產的HARSVERT-A係列高壓變頻器。2002年先在二水廠選用一台,兩年來運行效果很好,2004年決定在三水廠再選用兩台。HARSVERT-A係列高壓變頻器技術先進,可靠性高,輸出電壓波形好,並且已在電力、冶金、石化、市政供水、水泥等多個領域成功應用,得到了用戶的普遍認可和市場的長久考驗。
二、工程概況
吉林市於1998年建成二水廠(淨水廠),於2004年建成三水廠(淨水廠及原水給水廠),二水廠與法國得利滿公司合作,V型濾池計算機係統由設計院和法國得利滿聯合設計。V型濾池用的設備(閥門、儀表、控製台)材料,送水泵房的水泵,高壓10kV電機,中控室計算機係統及模擬屏、投tou影ying設she備bei均jun由you法fa國guo得de利li滿man公gong司si供gong貨huo。幾ji年nian來lai,通tong過guo與yu外wai方fang合he作zuo,去qu國guo內nei外wai水shui廠chang考kao察cha調tiao研yan,學xue習xi到dao了le國guo內nei外wai水shui廠chang的de長chang處chu,積ji累lei了le豐feng富fu的de經jing驗yan,尤you其qi是shi時shi間jian已yi進jin入ru了le二er十shi一yi世shi紀ji,在zai設she計ji三san水shui廠chang時shi,必bi須xu以yi“高起點、上水平、創特色”為宗旨,厚積薄發,開拓創新,要設計、建設最好的水廠,讓市民滿意的水廠。
三、節能原理
同(tong)中(zhong)國(guo)其(qi)他(ta)城(cheng)市(shi)一(yi)樣(yang),吉(ji)林(lin)市(shi)城(cheng)市(shi)用(yong)水(shui)量(liang)是(shi)不(bu)均(jun)勻(yun)的(de),這(zhe)是(shi)由(you)於(yu)氣(qi)候(hou)和(he)人(ren)們(men)生(sheng)活(huo)以(yi)及(ji)生(sheng)產(chan)規(gui)律(lv)所(suo)決(jue)定(ding)的(de)。由(you)於(yu)流(liu)量(liang)的(de)變(bian)化(hua)從(cong)而(er)影(ying)響(xiang)到(dao)管(guan)網(wang)水(shui)頭(tou)損(sun)失(shi)的(de)變(bian)化(hua),尤(you)其(qi)是(shi)地(di)勢(shi)平(ping)坦(tan)的(de)市(shi)區(qu),在(zai)幾(ji)何(he)揚(yang)程(cheng)很(hen)小(xiao)的(de)情(qing)況(kuang)下(xia),送(song)水(shui)泵(beng)站(zhan)出(chu)口(kou)所(suo)需(xu)壓(ya)力(li)隨(sui)流(liu)量(liang)的(de)變(bian)化(hua)更(geng)為(wei)顯(xian)著(zhu)。
水泵站的裝機是按最不利條件下、最(zui)大(da)時(shi)流(liu)量(liang)和(he)所(suo)需(xu)相(xiang)應(ying)揚(yang)程(cheng)決(jue)定(ding)的(de)。而(er)實(shi)際(ji)上(shang)每(mei)天(tian)內(nei)隻(zhi)有(you)很(hen)短(duan)時(shi)間(jian)能(neng)達(da)到(dao)最(zui)大(da)時(shi)流(liu)量(liang),大(da)多(duo)數(shu)時(shi)間(jian)裏(li),水(shui)泵(beng)站(zhan)都(dou)處(chu)在(zai)小(xiao)流(liu)量(liang)下(xia)工(gong)作(zuo)。為(wei)了(le)適(shi)應(ying)流(liu)量(liang)的(de)變(bian)化(hua),許(xu)多(duo)泵(beng)站(zhan)在(zai)運(yun)行(xing)中(zhong)采(cai)取(qu)關(guan)小(xiao)出(chu)口(kou)閘(zha)門(men)的(de)辦(ban)法(fa)來(lai)控(kong)製(zhi)流(liu)量(liang),從(cong)而(er)造(zao)成(cheng)出(chu)口(kou)閘(zha)門(men)前(qian)後(hou)的(de)壓(ya)力(li)差(cha)值(zhi)(少則多米,多則幾十米)就白白地浪費於閘門阻力上(如圖1)。

dangshuibengtaishuzugouduoshi,shikeyihenhaodishiyingshuiliangbianhuade,danshishuibengxinghaoshiyouxiande,zhuangjitaishuguoduo,bujinguanlibubian,erqiehuiwuweidizengdajianzhumianji,tigaogongchengzaojia,jishizheyang,yewufazuodaowanquanshiyingshuiliangbianhua,haixuyaoyongzhamenlaitiaojieshuiliang(如圖2)。
很多水廠切削水泵葉輪適應工作點需要,因水泵工作點不連續照樣有能量損失。
為(wei)此(ci),采(cai)用(yong)水(shui)泵(beng)機(ji)組(zu)無(wu)級(ji)調(tiao)速(su)技(ji)術(shu),可(ke)連(lian)續(xu)地(di)改(gai)變(bian)水(shui)泵(beng)轉(zhuan)數(shu),來(lai)變(bian)更(geng)水(shui)泵(beng)工(gong)況(kuang),使(shi)其(qi)流(liu)量(liang)與(yu)揚(yang)程(cheng)適(shi)應(ying)於(yu)管(guan)網(wang)用(yong)水(shui)量(liang)的(de)變(bian)化(hua),才(cai)能(neng)提(ti)高(gao)機(ji)組(zu)效(xiao)率(lv),維(wei)持(chi)管(guan)網(wang)壓(ya)力(li)恒(heng)定(ding),達(da)到(dao)節(jie)能(neng)的(de)效(xiao)果(guo)。節(jie)能(neng)原(yuan)理(li)如(ru)圖(tu)3所示。AB為全速泵特性曲線,AnBn為調速泵特性曲線,CBnB為管路特性曲線,CO為幾何揚程(含地形差和自由水頭),當用水量從Qmax減少到Qmin的過程中,全速泵的揚程將沿BA曲線上升,而管網所需揚程將沿BBn曲線下降,這兩條曲線縱坐標的差值就意味著全速泵揚程的浪費。應用水泵調速技術時,當用水量從Qmax變動到Qmin的過程中,水泵轉數隨流量從額定位n降到n1n2n3……nn,水泵的Q―H特性曲線AB也相應變化為A1B1,A2B2,A3B3……AnBn。而這組平行的特性曲線AB―AnBn與管路特性曲線CB的交點軌跡BBnzhengzaiguanlutexingquxianshang。zheyangjiukeshishuibenggongzuodianyanguanlutexingquxianhuadong,shiyangchengchunengyuxitongzulixiangshiying,zuodaomeiyouduoyuyalidesunshi,qienengbaochiguanwangyalihengding,genjushuibengzhougonglvdejisuangongshi,mingxianshoudaojienengxiaoguo。

weishixianshuibengjizusuiyongshuiliangbianhuaerzidongtiaosu,zuizhijiedebanfashizaiguanwangzuibulidianchusheyuanchuanyaliji,bingshedingyalizhi。weijixitongshurudeyalixinhaoancunfangdechengxugaibianshuibengzhuanshu,dadaozuibulidianyalihengdinghegongxushuiliangpingheng。danshizuibulidianjubengzhanwangwanghenyuan,yuanchuanxinhaobufangbian。caiyongbengzhanchukouyaliheliulianglaikongzhishuibengzhuanshushichangyongdebanfa。dangguanwangquedingzhihou,chukouyaliyingshiliuliangdehanshuquxianjiweiguanlutexingquxian,suoyikeyiliyongtu4的控製係統自動地調節水泵轉數。
四、係統方案設計
1. 係統電氣設計
1.1三水廠的淨水廠
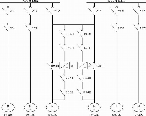
設計院和吉林市自來水集團有限公司通過工藝上認真計算,根據實際工況要求設計主回路電氣結構圖,選用HARSVERT-A型高壓變頻器一拖一的成功方案。如圖5所示。一拖一的兩台電機互為備用。

以3#水泵為例說明,工作原理是由3個真空接觸器KM31、KM32、KM33以及2個高壓隔離開關QS31、QS32組成(如圖5),其中KM31、KM32、KM33為高壓真空接觸器,用於變頻和工頻的電動切換。QS31和QS32為高壓隔離開關,一般情況下處於合閘狀態,僅在變頻器檢修時拉開,用於電機工頻運行情況下對變頻器進行安全檢修。
特點:
1)可以實現工頻/變bian頻pin自zi動dong切qie換huan功gong能neng。在zai變bian頻pin器qi出chu現xian嚴yan重zhong故gu障zhang時shi,係xi統tong能neng夠gou自zi動dong切qie入ru工gong頻pin電dian網wang中zhong,斷duan開kai變bian頻pin器qi時shi,負fu載zai不bu用yong停ting機ji,滿man足zu現xian場chang不bu能neng停ting機ji要yao求qiu。
2)易實現四運兩備運行方式。即一台變頻運行,三台工頻運行,二台工頻備用;四台工頻運行,一台工頻備用,一台變頻備用。
1. 2三水廠的取水廠
選用HARSVERT-A型高壓變頻器一拖一的成功方案。如圖6所示。
以1#水泵為例說明,工作原理是由3個真空接觸器KM11、KM12、KM13以及2個高壓隔離開關QS11、QS12組成(如圖6),其中KM11、KM12、KM13為高壓真空接觸器,用於變頻和工頻的電動切換。QS11和QS12為高壓隔離開關,一般情況下處於合閘狀態,僅在變頻器檢修時拉開,用於電機工頻運行情況下對變頻器進行安全檢修。
高壓變頻器工作特點:
1)可以實現工/變bian頻pin自zi動dong切qie換huan功gong能neng。在zai變bian頻pin器qi出chu現xian嚴yan重zhong故gu障zhang時shi,係xi統tong能neng夠gou自zi動dong切qie入ru工gong頻pin電dian網wang中zhong,斷duan開kai變bian頻pin器qi時shi,負fu載zai不bu用yong停ting機ji,滿man足zu現xian場chang不bu能neng停ting機ji要yao求qiu。
2)易實現三運一備運行方式。即一台變頻運行,二台工頻運行,一台工頻備用;三台工頻運行,一台變頻備用。 圖5:一拖一方案

圖6:高壓變頻器工作原理
五、變頻調速設備
HARSVERT-A高壓變頻器采用單元串聯多電平電壓源型拓樸方式。
其優點是采用輸入多重化設計,高次諧波含量非常小,輸出采用單元模塊串聯,使得諧波含量極低,在無輸出濾波器的情況下,可使THD<3%,堪稱“完美無諧波”高壓變頻器;極低的轉矩紋波和電機噪聲;功率因數可達0.95;對電機絕緣無損害,電纜長度無限製;便於冗餘設計;中文操作界麵便於維修。
1.係統結構
HARSVERT-A係列高壓變頻調速係統的結構如圖7,由移相變壓器、功率單元和控製器組成。10kV係列有24個功率單元,每8個功率單元串聯構成一相。

圖7:高壓變頻調速係統結構圖
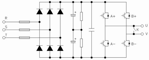
2.功率單元結構
每個功率單元結構上完全一致,可以互換,其電路結構如圖8,為基本的交-直-交單相逆變電路,整流側為二極管三相全橋,通過對IGBT逆變橋進行正弦PWM控製。
 圖8:功率單元結構圖
4.輸入側結構
輸入側由移相變壓器給每個單元供電,移相變壓器的副邊繞組分為三組,對10kV係列,構成48脈衝整流方式;這種多級移相疊加的整流方式可以大大改善網側的電流波形,使其網側功率因數接近1。
另外,由於變壓器副邊繞組的獨立性,使每個功率單元的主回路相對獨立,類似常規低壓變頻器。便於采用現有的成熟技術。
5.輸出側結構
輸出側由每個單元的U、V輸出端子互相串接而成星型接法給電機供電,通過對每個單元的PWM波形進行重組,這種波形正弦度好,dv/dt小,可減少對電纜和電機的絕緣損壞,無須輸出濾波器就可以使輸出電纜長度很長,電機不需要降額使用,可直接用於舊設備的改造;同時,電機的諧波損耗大大減少,消除了由此引起的機械震動,減小了軸承和葉片的機械應力。
當某一個單元出現故障時,通過使繼電器K閉合,可將此單元旁路出係統而不影響其他單元的運行,高壓變頻器可持續降額運行;如此可減少很多場合下停機造成的損失。
6.控製器
控製器核心由高速單片機和工控PC協同運算來實現,精心設計的算法可以保證電機達到最優的運行性能。工控PC提供友好的全中文WINDOWS監控和操作界麵,同時可以實現遠程監控和網絡化控製。控製器還包括一台內置的PLC,用於櫃體內開關信號的邏輯處理,以及與現場各種操作信號和狀態信號的協調,增強了係統的靈活性。
控製器結構上采用VME標準箱體結構,各控製單元采用FPGA、CPLD等大規模集成電路和表麵焊接技術,係統具有極高的可靠性。
另ling外wai,控kong製zhi器qi與yu功gong率lv單dan元yuan之zhi間jian采cai用yong光guang纖xian通tong訊xun技ji術shu,低di壓ya部bu分fen和he高gao壓ya部bu分fen完wan全quan可ke靠kao隔ge離li,係xi統tong具ju有you極ji高gao的de安an全quan性xing,同tong時shi具ju有you很hen好hao的de抗kang電dian磁ci幹gan擾rao性xing能neng。
六、軟件設計及自動化網絡設計
1.軟件設計
上位機係統選用亞控公司生產的組態王軟件。該軟件具有友好的人機界麵,支持以太網絡。可以很方便的實現遠程監視等功能。報表、報警功能強大,支持OPC,支持多種型號的PLC通訊。
軟件設計過程中,由於上位機的程序組態王不直接支持西門子的以太網通訊協議,因此需要利用OPC Server來作為過渡。這樣也使得局域網上的機器可以方便調用該機的參數,便於遠程監視。
兩台上位機同時監控整個係統,當主上位機A故障退出時,從上位機B仍然能實時監控係統,這樣保證係統的安全性、可靠性。
2.自動化網路設計
控製係統由主控PLC、旁路櫃控製PLC、高壓變頻器、上位機組成。其中主控係統采用西門子S7-300PLC、旁路櫃內置西門子S7-200-PLC、上位機監控選用組態王軟件。通訊網路在底層采用Profibus DP總線,主控PLC和上位機監控係統采用以太網通訊。西門子S7-300PLC作為整個係統的控製核心,處理人機界麵對係統的各種請求,對整個係統的參數進行監控,實現對集氣管壓力的PID調節,維持管網的壓力恒定。自動旁路櫃集成有S7-200PLC,完成變頻工頻切換功能。上位機係統采用用戶熟悉的組態王監控軟件,與PLC的連接采用以太網方式。考慮現場工況,對安全性、可靠性、穩定性要求都很高,我們現場控製級采用Profibus DP總線連接,監控操作級采用Ethernet方案,接入焦化廠局域網主服務器係統,實現遠程監視。配置上:西門子S7-200配置EM277 Profibus 總線模塊,S7-300選用315-2 DP,並配置CP341-1T 以太網模塊,PLC集成的DP接口用於連接S7-200,以太網模塊CP343-1T用於和上位機的以太網連接。
控製網絡具有如下特點:良好的穩定性、擴展性、軟硬件的開放性以及友好的人機界麵,上位機按冗餘控製配置等優點。
七、結束語
用高壓變頻器控製水泵機組,大大改善了供水、淨水生產及現場環境,完全達到了生產工藝要求。PLC控製技術、Profibus總線技術和高壓變頻技術的完美結合,使得集成自動化程度高,運行穩定,操作簡單,節能高效明顯等優點。
吉林市三水廠高壓變頻器控製係統的成功應用,對於節約電能、減員增效、技術創新,都具有很高的經濟價值,值得推廣。
要想送水泵站每台泵實現優化運行,就要研究其定性與定量的運行規律。我們根據吉林市區用水曲線、出(chu)廠(chang)壓(ya)力(li)與(yu)管(guan)網(wang)壓(ya)力(li)控(kong)製(zhi)點(dian),清(qing)水(shui)池(chi)水(shui)位(wei)等(deng)參(can)數(shu),正(zheng)在(zai)建(jian)立(li)優(you)化(hua)控(kong)製(zhi)數(shu)學(xue)模(mo)型(xing),在(zai)此(ci)基(ji)礎(chu)上(shang),下(xia)一(yi)步(bu)定(ding)量(liang)控(kong)製(zhi)淨(jing)水(shui)廠(chang)泵(beng)站(zhan)定(ding)速(su)與(yu)變(bian)頻(pin)調(tiao)速(su)機(ji)組(zu)優(you)化(hua)運(yun)行(xing)時(shi)的(de)流(liu)量(liang)、揚程、效率變化規律。這樣可以根據用戶對於用水量與揚程要求,實現最優化控製。這種方式實現之時,便可以滿足用戶對水量、水壓的需要,又達到明顯降低電耗的目的。這是我們麵臨的一個艱巨的、必須攻克的難題。
吉林市淨水廠送水泵房水泵機組調速的經濟效果很明顯,比不調速節能30%左右,而且設備運行可靠,操作維護方便,由計算機控製,實現了吉林市第三淨水廠優化控製,現代化管理。我們要繼續努力,力爭將吉林三水廠建成國內外先進水平的水廠。
|