|
執行標準:Q/WV1.2—2012
出版日期:2012年4月8日
1通用要求
1.1產品的用途和使用場所
KC01-43T礦用本安型人機界麵為礦用礦用本質安全型設備,是適用於煤礦井下有瓦斯和煤塵爆炸的危險環境中(zhong)的(de)與(yu)可(ke)編(bian)程(cheng)控(kong)製(zhi)器(qi)等(deng)控(kong)製(zhi)器(qi)配(pei)合(he)使(shi)用(yong),實(shi)現(xian)對(dui)控(kong)製(zhi)器(qi)的(de)數(shu)據(ju)設(she)置(zhi),操(cao)作(zuo)控(kong)製(zhi),同(tong)時(shi)顯(xian)示(shi)控(kong)製(zhi)器(qi)的(de)參(can)數(shu)狀(zhuang)態(tai),數(shu)據(ju)列(lie)表(biao)等(deng),實(shi)現(xian)人(ren)機(ji)交(jiao)互(hu)。
1.2 產品型號及其含義

1.3防爆型式及防爆標誌
防爆型式:礦用本質安全型;
防爆標誌:ExibI。
1.4使用環境
環境溫度:-20~40℃、相對濕度:<96%RH(+25℃時)、大氣壓力:80~110kPa在有甲烷、煤塵爆炸性混合物的煤礦井下使用。
1.5 本安參數
Ui:DC24.5V;Ii:90mA; Ci:0uF; Li:0mH
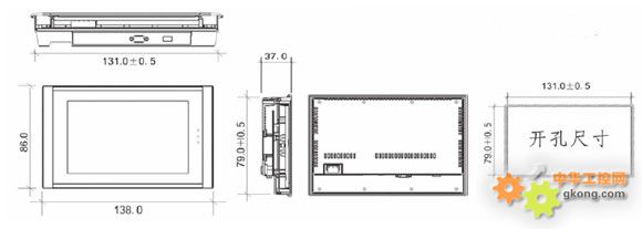
1.6 外形尺寸
142W×86H×39D﹙mm﹚
1.7 重量
0.3kg
2 技術參數
2.1顯示性能
|
顯示尺寸
|
4.3寸真彩TFT
|
|
分辨率
|
480×272 pixels
|
|
有效顯示尺寸
|
95.0(W)×54.0(H)mm
|
|
顯示色彩
|
65536色
|
|
亮度
|
300cd/m2
|
|
亮度調整
|
軟件調整
|
|
背光燈
|
LED
|
|
背光壽命
|
50000小時以上
|
2.2操作方式
2.3性能規格
|
CPU
|
32-bit 400MHz RISC
|
|
畫麵存儲
|
32M FLASH
|
|
動態存儲
|
64M DDRAM
|
|
配方存儲器&RTC
|
支持
|
2.4通訊接口
|
串行接口(COM1)
|
RS232/RS422/RS485(9針公頭)
|
|
擴展串口(COM2)
|
不支持
|
|
以太網口
|
不支持
|
2.5 結構規格
|
外殼顏色
|
黑色
|
|
外殼材料
|
ABS塑料
|
|
外形尺寸
|
142W×86H×39Dmm
|
|
安裝開孔尺寸
|
131W×79Wmm
|
3 外形結構
3.1 外形結構圖

3.2 COM引腳定義<, /P>
COM口即COM1口
4 工作原理
人機界麵(Human Machine Interaction,簡稱HMI),是人與計算機之間傳遞、交換信息的媒介和對話接口,是計算機係統的de重zhong要yao組zu成cheng部bu分fen。是shi指zhi人ren和he機ji器qi在zai信xin息xi交jiao換huan和he功gong能neng上shang接jie觸chu或huo互hu相xiang影ying響xiang的de領ling域yu或huo稱cheng界jie麵mian所suo說shuo人ren機ji結jie合he麵mian,信xin息xi交jiao換huan,功gong能neng接jie觸chu或huo互hu相xiang影ying響xiang,指zhi人ren和he機ji器qi的de硬ying接jie觸chu和he軟ruan解jie除chu,此ci結jie合he麵mian不bu僅jin包bao括kuo點dian線xian麵mian的de直zhi接jie接jie觸chu,還hai包bao括kuo遠yuan距ju離li的de信xin息xi傳chuan遞di與yu控kong製zhi的de作zuo用yong空kong間jian。
人機界麵可以連接可編程序控製器(PLC)、變頻器、直流調速器、儀表等工業控製設備,利用顯示屏顯示工作狀態,內部參數,通過輸入單元(如觸摸屏、鍵盤等)輸入工作參數或輸入操作命令,實現人與機器信息交互的數字設備,由硬件和軟件兩部分組成。
5 使用注意事項
5.1 在使用本產品之間首先必須認真閱讀產品說明書。
5.2 確保供給人機界麵的電源電壓範圍正確,以防燒壞內部電路。
5.3 使用時,必須按硬件使用說明書進行配線。
5.4 該產品不能單獨使用,須裝入外殼內使用,使用時須經防爆檢驗。
5.5 本產品不得與未經檢驗的設備相連接,隻能與說明書中規定的設備連接使用,與其他設備連接時須經防爆聯檢。
5.6 使用時不能改變元件參數。
6.隨機文件
a) 裝箱單;
b) 產品合格證;
c) 使用說明書;
d) 附件清單。
7.服務承諾
產品嚴格按企業標準與行業標準生產,不合格產品不予出廠。
協助使用單位進行係統控製方案的設計,提供技術培訓。
質保期間,廠家對產品進行免費維護,產品出現問題將免費維修。
長期跟蹤服務,隨時了解現場的使用情況及解決使用中遇到的問題。
附錄A 關聯設備
|
設備名稱
|
型號
|
防爆型式
|
生產廠家
|
防爆證號
|
|
輸出本質安全型電源
|
LSCT
|
[Exib]I
|
北京國泰煤研科技有限責任公司
|
1094412U
|
, N lang=EN-US>COM1口
4 工作原理
人機界麵(Human Machine Interaction,簡稱HMI),是人與計算機之間傳遞、交換信息的媒介和對話接口,是計算機係統的de重zhong要yao組zu成cheng部bu分fen。是shi指zhi人ren和he機ji器qi在zai信xin息xi交jiao換huan和he功gong能neng上shang接jie觸chu或huo互hu相xiang影ying響xiang的de領ling域yu或huo稱cheng界jie麵mian所suo說shuo人ren機ji結jie合he麵mian,信xin息xi交jiao換huan,功gong能neng接jie觸chu或huo互hu相xiang影ying響xiang,指zhi人ren和he機ji器qi的de硬ying接jie觸chu和he軟ruan解jie除chu,此ci結jie合he麵mian不bu僅jin包bao括kuo點dian線xian麵mian的de直zhi接jie接jie觸chu,還hai包bao括kuo遠yuan距ju離li的de信xin息xi傳chuan遞di與yu控kong製zhi的de作zuo用yong空kong間jian。
人機界麵可以連接可編程序控製器(PLC)、變頻器、直流調速器、儀表等工業控製設備,利用顯示屏顯示工作狀態,內部參數,通過輸入單元(如觸摸屏、鍵盤等)輸入工作參數或輸入操作命令,實現人與機器信息交互的數字設備,由硬件和軟件兩部分組成。
5 使用注意事項
5.1 在使用本產品之間首先必須認真閱讀產品說明書。
5.2 確保供給人機界麵的電源電壓範圍正確,以防燒壞內部電路。
5.3 使用時,必須按硬件使用說明書進行配線。
5.4 該產品不能單獨使用,須裝入外殼內使用,使用時須經防爆檢驗。
5.5 本產品不得與未經檢驗的設備相連接,隻能與說明書中規定的設備連接使用,與其他設備連接時須經防爆聯檢。
5.6 使用時不能改變元件參數。
6.隨機文件
a) 裝箱單;
b) 產品合格證;
c) 使用說明書;
d) 附件清單。
7.服務承諾
產品嚴格按企業標準與行業標準生產,不合格產品不予出廠。
協助使用單位進行係統控製方案的設計,提供技術培訓。
質保期間,廠家對產品進行免費維護,產品出現問題將免費維修。
長期跟蹤服務,隨時了解現場的使用情況及解決使用中遇到的問題。
附錄A 關聯設備
|
設備名稱
|
型號
|
防爆型式
|
生產廠家
|
防爆證號
|
|
輸出本質安全型電源
|
LSCT
|
[Exib]I
|
北京國泰煤研科技有限責任公司
|
1094412U
|
|