|
一、 項目說明
轉軸式切板機是一種目前市場上比較新的機型。總體配置如下:一條輸送帶,一個轉軸式切刀,兩台電機(一台輸送帶,一台轉軸切刀),兩個光電(檢測木板用),一個接近開關(安裝在切刀轉軸的側麵,用於複位切刀角度以及計數作用),該(gai)種(zhong)機(ji)型(xing)沒(mei)有(you)用(yong)到(dao)編(bian)碼(ma)器(qi),速(su)度(du)與(yu)長(chang)度(du)都(dou)是(shi)靠(kao)兩(liang)台(tai)變(bian)頻(pin)器(qi)的(de)頻(pin)率(lv)控(kong)製(zhi)。轉(zhuan)軸(zhou)切(qie)刀(dao)式(shi)機(ji)型(xing),類(lei)似(si)於(yu)凸(tu)輪(lun)結(jie)構(gou),刀(dao)跟(gen)著(zhe)軸(zhou)不(bu)間(jian)斷(duan)轉(zhuan)動(dong),實(shi)現(xian)切(qie)割(ge)。這(zhe)種(zhong)機(ji)型(xing)的(de)結(jie)構(gou)簡(jian)潔(jie),而(er)且(qie)工(gong)作(zuo)效(xiao)率(lv)高(gao)。
二、 調試總結
調試過程中遇到的一些問題:
1、頭刀長度無法控製,會出現偏差
主要原因是第一步自診定(即讓切刀轉軸停在規定的位置),當和切刀軸連在一起的鐵塊碰到接近開關時,切刀軸由於速度過快,慣性作用下無法停在製定位置。方法:變頻設置多段數,Y給個點給變頻器,使第一步自診定的速度降低即可
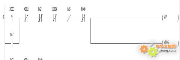
其中M7控製切刀轉動,Y6為多段速輸出點
2、暫停後再啟動,無法繼續之前的動作
這個問題主要是程序上的修改


運用到的是一個判斷,當光電有檢測到板時暫停的情況,以及光電沒有檢測到板時,暫停的情況,以此解決了這個問題
3、切板時,停止後再啟動,切的第一塊板長度偏短2,3cm
這zhe個ge問wen題ti其qi實shi和he第di一yi個ge問wen題ti類lei似si,也ye是shi由you於yu切qie刀dao軸zhou停ting止zhi時shi,速su度du過guo快kuai,電dian機ji無wu法fa馬ma上shang刹sha死si,會hui多duo轉zhuan一yi些xie,再zai啟qi動dong時shi自zi然ran剪jian出chu的de板ban會hui偏pian短duan。這zhe個ge問wen題ti主zhu要yao是shi機ji械xie與yu變bian頻pin器qi的de問wen題ti。
還有一個想法是增加一個輸出Ydian,zuoduoduansuyong,jidanggongzuoguochengzhongjiqizantinghou,zairangshusongdaimansuqianjinyixiejuli,qianjinduoshaoyaozaixianchangqueren,yicilaijianxiaozhezhongqingkuangxiadewucha。
三、 總結
調試工程中遇到問題時,最重要的是思路要清晰,從而找出問題根源,想方法解決。維控PLC在這類型切板機上的成功運用,為今後PLC在這個行業的深入是有益的。
|